Rif: 8800001
PERUGIA
PERUGIA - zona Elce
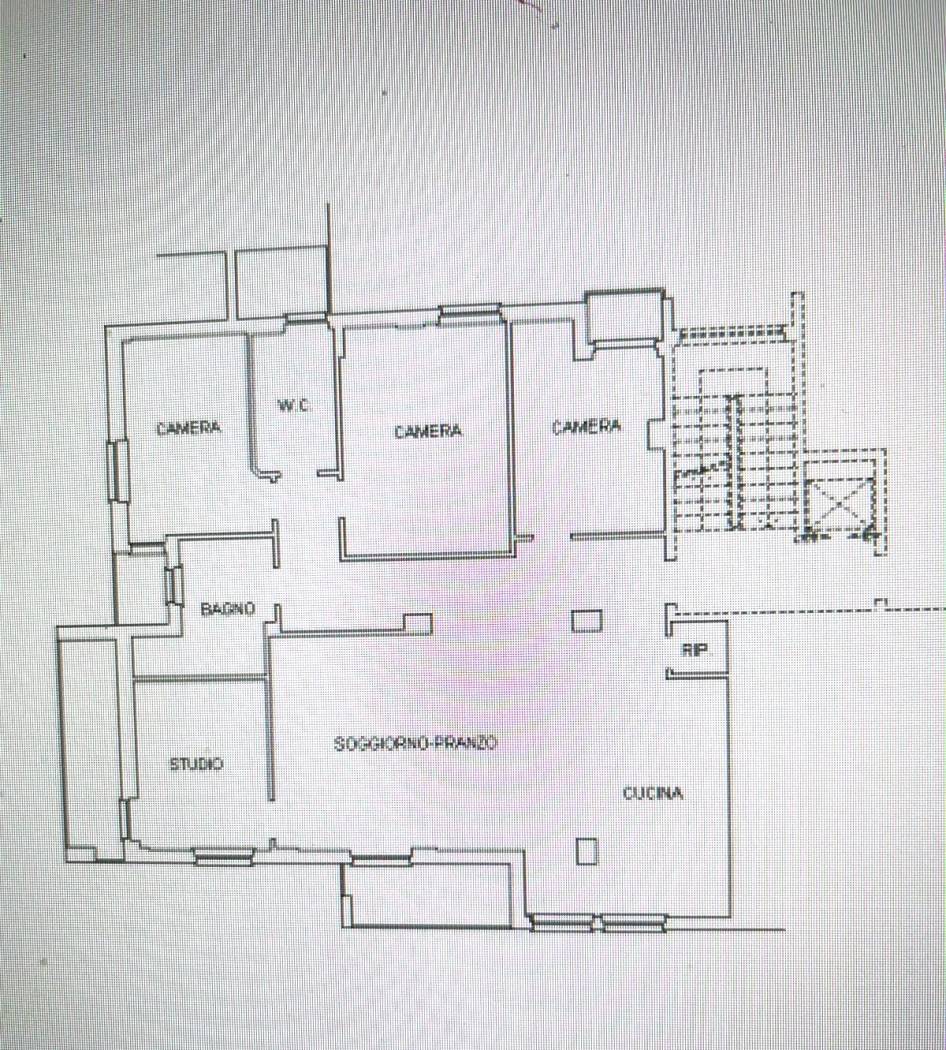
UMBRIA ELCE Perugia in zona servita e silenziosa , appartamento ristrutturato nel 2023 luminoso posto al piano 3° dal lato strada principale e piano 1° dal retro palazzina, , di mq 152 commerciali con garage di mq 23 commerciali composto da ingresso su doppio soggiorno con terrazzo e grande cucina a vista con penisola, studio con terrazzo, tre camere di cui una con balcone , due bagni finestrati, ripostiglio.
Caratteristiche : n° 6 condizionatori caldo-freddo, infissi nuovi vetro triplo con serrande motoriizzate, videocitofono, impianto elettrico-idraulico rifatto, predisposizione per allarme, controsoffitto con faretti, radiatori e termoarredi nuovi, zanzariere, addolcitore, pavimenti nuovi, bagni rifatti, impianto domotico che controlla il funzionamento delle luci, dell'aria condizionata, della pompa di calore. Ascensore – garage , parcheggio esterno. classe energetica A1 visti gli accorimenti . ( il costo dell'immobile si intende vuoto da mobilia, nel caso vi fosse interesse per la cucina se ne puo' parlare) Richiesta Euro 280.000 cellulare 3939130938
GUARDA IL VIDEO https://www.facebook.com/reel/1324617941932835
Caratteristiche : n° 6 condizionatori caldo-freddo, infissi nuovi vetro triplo con serrande motoriizzate, videocitofono, impianto elettrico-idraulico rifatto, predisposizione per allarme, controsoffitto con faretti, radiatori e termoarredi nuovi, zanzariere, addolcitore, pavimenti nuovi, bagni rifatti, impianto domotico che controlla il funzionamento delle luci, dell'aria condizionata, della pompa di calore. Ascensore – garage , parcheggio esterno. classe energetica A1 visti gli accorimenti . ( il costo dell'immobile si intende vuoto da mobilia, nel caso vi fosse interesse per la cucina se ne puo' parlare) Richiesta Euro 280.000 cellulare 3939130938
GUARDA IL VIDEO https://www.facebook.com/reel/1324617941932835
Consistenze
| Descrizione | Superficie | Sup. comm. |
|---|---|---|
| Principali | ||
| Immobile - 3° piano | 152 Mq | 152 Mqc |
| Totale | 152 Mqc | |
